The Sun Maison Shirokanedai 5-chome 618 million yen (3LDK)
5 SHIROKANEDAI

The Sun Maison Shirokanedai 5-chome 618 million yen (3LDK)

Price ¥618,000,000 ¥5,054,388/m²
Size 122.27m2 3LDK
Bedrooms 3
Floor: 5th floor Exposure: Southwest Balcony: 7.57m2
Monthly Costs
Management Fee ¥66,970/month
Repair Reserve ¥12,760/month
Transportation Access
  • 9-minute walk from Shirokanedai Station on the Tokyo Metro Namboku Line
  • 15-minute walk from Meguro Station on the JR Yamanote Line
  • 15-minute walk from Hiroo Station on the Tokyo Metro Hibiya Line

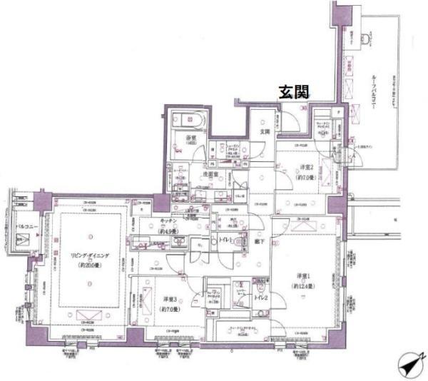
Floor Plans

Floor Plan

About This Residence

Location: 5 Shirokanedai, Minato-ku, Tokyo
3LDK | Floor 5th floor | Southwest facing
122.27 m² | Balcony: 7.57 m²
Built: June 2021 | Reinforced concrete, 5 floors
Management: ¥66,970/mo | Repair Reserve: ¥12,760/mo
Available: Negotiable

Building Details

Year Built June 2021
Structure Reinforced concrete, 5 floors
Total Floors 5 floors
Land Rights Ownership
Building Area 122.27m²

Land & Zoning

Zoning Category 1 Mid/High-rise Residential Zone

Features & Amenities

Accessible by more than two train lines Supermarket within 10-minute walk System kitchen Excellent sunlight exposure All rooms with storage Quiet residential area General hospital within 10-minute walk Bidet toilet seat Good ventilation All rooms with wooden flooring Southwest facing Elevator

Property Information

Land Rights Ownership
Listing Type For sale
Handover Date Negotiable
Address 5 Shirokanedai, Minato-ku, Tokyo
Neighborhood
Japan Tokyo Central Tokyo
Schedule a Private Viewing
Viewings are by appointment only. Our team will arrange a discreet visit at your convenience.
REQUEST INFORMATION
Begin the Conversation
All inquiries are handled with complete discretion. A member of our team will respond within 24 hours.

    By submitting this form, you acknowledge that your information will be handled with complete confidentiality in accordance with our privacy practices.

    Compare Listings

    admin 2