Proud Tower Shibuya 698 million yen (2LDK)
SHIBUYA 3

Proud Tower Shibuya 698 million yen (2LDK)

Price ¥698,000,000 ¥6,146,530/m²
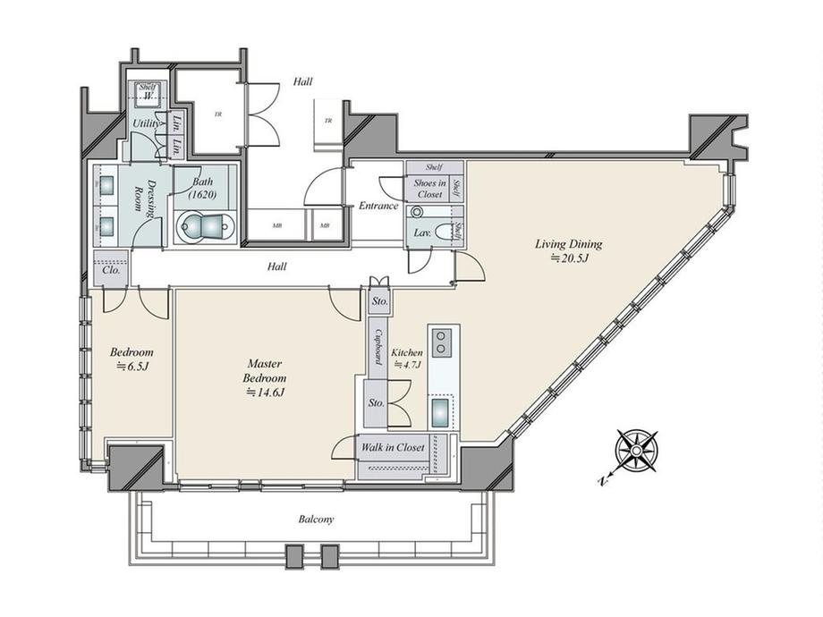
Size 113.56m2 2LDK
Bedrooms 2
Floor: 25th floor Exposure: Northwest Balcony: 16.02m2
Monthly Costs
Management Fee ¥53,830/month
Repair Reserve ¥27,030/month
Transportation Access
  • Tokyo Metro Hanzomon Line 'Shibuya' 5-minute walk
  • JR Yamanote Line 'Shibuya' 7-minute walk

Floor Plans

Floor Plan

About This Residence

Location: Shibuya 3, Shibuya-ku, Tokyo
2LDK | Floor 25th floor | Northwest facing
113.56 m² | Balcony: 16.02 m²
Built: March 2025 | Reinforced concrete, 26 floors above ground, 2 basement floors | 132 units
Management: ¥53,830/mo | Repair Reserve: ¥27,030/mo
Available: Negotiable

Building Details

Year Built March 2025
Structure Reinforced concrete, 26 floors above ground, 2 basement floors
Total Floors 26 floors above ground, 2 basement floors
Total Units 132 units
Land Rights Ownership
Building Area 113.56m²

Land & Zoning

Zoning Commercial

Features & Amenities

Accessible by more than two train lines LDK over 20 tatami mats Supermarket within a 10-minute walk System kitchen Storage in all rooms First train station High floor Open kitchen 24-hour garbage disposal allowed Enhanced security Three-sided natural lighting Bathroom over 1 tsubo (approx. 3.3 sqm) Bidet toilet seat Walk-in closet All rooms 6 tatami mats or larger Shoes-in cloakroom Elevator Dishwasher and dryer Disposer (food waste crusher)

Property Information

Land Rights Ownership
Listing Type For sale
Handover Date Negotiable
Address Shibuya 3, Shibuya-ku, Tokyo
Neighborhood
Japan Tokyo
Schedule a Private Viewing
Viewings are by appointment only. Our team will arrange a discreet visit at your convenience.
REQUEST INFORMATION
Begin the Conversation
All inquiries are handled with complete discretion. A member of our team will respond within 24 hours.

    By submitting this form, you acknowledge that your information will be handled with complete confidentiality in accordance with our privacy practices.

    Compare Listings

    admin 2