Proud Jingumae 1.18 billion yen (2LDK)
6 JINGUMAE

Proud Jingumae 1.18 billion yen (2LDK)

Price ¥1,180,000,000 ¥9,376,987/m²
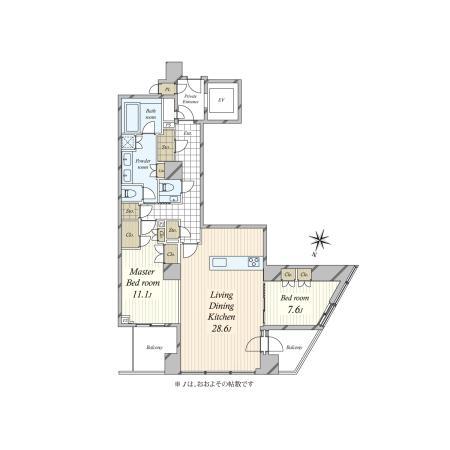
Size 125.84m2 2LDK
Bedrooms 2
Floor: 3rd floor Exposure: Northwest Balcony: 15.12m2
Monthly Costs
Management Fee ¥134,670/month
Repair Reserve ¥24,000/month
Transportation Access
  • 3-min walk from Meiji-Jingumae Station on the Tokyo Metro Fukutoshin Line
  • 3-min walk from Meiji-Jingumae Station on the Tokyo Metro Chiyoda Line
  • 4-min walk from Harajuku Station on the JR Yamanote Line

Floor Plans

Floor Plan

About This Residence

Location: 6 Jingumae, Shibuya-ku, Tokyo
2LDK | Floor 3rd floor | Northwest facing
125.84 m² | Balcony: 15.12 m²
Built: November 2024 | Reinforced concrete, 11 floors above ground, 2 basement floors | 76 units
Management: ¥134,670/mo | Repair Reserve: ¥24,000/mo
Available: Negotiable

Building Details

Year Built November 2024
Structure Reinforced concrete, 11 floors above ground, 2 basement floors
Total Floors 11 floors above ground, 2 basement floors
Total Units 76 units
Land Rights Ownership
Building Area 125.84m²

Land & Zoning

Zoning Category II medium- to high-rise exclusive residential district

Features & Amenities

Accessible via more than two train lines Living-Dining-Kitchen space over 20 tatami mats System kitchen Bathroom dryer Guest room Open counter kitchen 24-hour garbage disposal Enhanced security Heated toilet seat with bidet TV monitor intercom Pet consultation available Floor heating Elevator Delivery box Dishwasher and dryer Garbage disposal (food waste grinder) Water purifier

Property Information

Land Rights Ownership
Listing Type For sale
Handover Date Negotiable
Address 6 Jingumae, Shibuya-ku, Tokyo
Neighborhood
Japan Tokyo
Schedule a Private Viewing
Viewings are by appointment only. Our team will arrange a discreet visit at your convenience.
REQUEST INFORMATION
Begin the Conversation
All inquiries are handled with complete discretion. A member of our team will respond within 24 hours.

    By submitting this form, you acknowledge that your information will be handled with complete confidentiality in accordance with our privacy practices.

    Compare Listings

    admin 2