Leafia Residence Uehara 348 million yen (3LDK)
UEHARA 3

Leafia Residence Uehara 348 million yen (3LDK)

Price ¥348,000,000 ¥3,448,276/m²
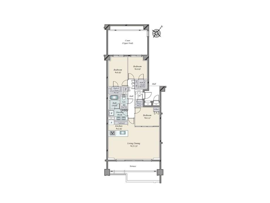
Size 100.92m2 3LDK
Bedrooms 3
Floor: 1st floor Exposure: Southeast
Monthly Costs
Management Fee ¥40,170/month
Repair Reserve ¥11,610/month
Transportation Access
  • 9-minute walk from Yoyogi-Uehara Station on the Tokyo Metro Chiyoda Line
  • 9-minute walk from Yoyogi-Uehara Station on the Odakyu Line
  • 3-minute walk from Higashi-Kitazawa Station on the Odakyu Line

Floor Plans

Floor Plan

About This Residence

Location: Uehara 3, Shibuya-ku, Tokyo
3LDK | Floor 1st floor | Southeast facing
100.92 m²
Built: March 2021 | Reinforced concrete, 4 stories | 65 units
Management: ¥40,170/mo | Repair Reserve: ¥11,610/mo
Available: Negotiable

Building Details

Year Built March 2021
Structure Reinforced concrete, 4 stories
Total Floors 4 floors
Total Units 65 units
Land Rights Ownership
Building Area 100.92m²

Land & Zoning

Zoning Category 1 Low-Rise Residential Zone

Features & Amenities

Access to more than two train lines Living Dining Kitchen over 20 tatami mats Bathroom dryer Quiet residential area Mist sauna Open kitchen 24-hour garbage disposal allowed Enhanced security Two or more balconies TV monitor intercom Green residential area All rooms with hardwood flooring Walk-in closet Pets negotiable BS/CS/CATV Floor heating Elevator Terrace Delivery box Bicycle parking Dishwasher and dryer Motorcycle parking Disposer (food waste crusher)

Property Information

Land Rights Ownership
Listing Type For sale
Handover Date Negotiable
Address Uehara 3, Shibuya-ku, Tokyo
Neighborhood
Japan Tokyo
Schedule a Private Viewing
Viewings are by appointment only. Our team will arrange a discreet visit at your convenience.
REQUEST INFORMATION
Begin the Conversation
All inquiries are handled with complete discretion. A member of our team will respond within 24 hours.

    By submitting this form, you acknowledge that your information will be handled with complete confidentiality in accordance with our privacy practices.

    Compare Listings

    admin 2