Court Annex Azabu Nagasaka 388 million yen (3LDK)
AZABU NAGASAKA-CHO

Court Annex Azabu Nagasaka 388 million yen (3LDK)

Price ¥388,000,000 ¥3,776,891/m²
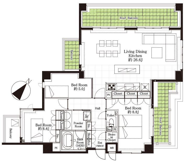
Size 102.73m2 3LDK
Bedrooms 3
Floor: 6th floor Exposure: Northwest Balcony: 26.00m2
Monthly Costs
Management Fee ¥10,680/month
Repair Reserve ¥34,520/month
Transportation Access
  • Toei Oedo Line 'Azabu-Juban' 3-minute walk
  • Tokyo Metro Namboku Line 'Azabu-Juban' 4-minute walk
  • Tokyo Metro Hibiya Line 'Roppongi' 14-minute walk

Floor Plans

Floor Plan

About This Residence

Location: Azabu Nagasaka-cho, Minato-ku, Tokyo
3LDK | Floor 6th floor | Northwest facing
102.73 m² | Balcony: 26.00 m²
Built: December 2002 | Reinforced concrete, 7 floors above ground, 1 basement floor | 28 units
Management: ¥10,680/mo | Repair Reserve: ¥34,520/mo
Available: Negotiable

Building Details

Year Built December 2002
Structure Reinforced concrete, 7 floors above ground, 1 basement floor
Total Floors 7 floors above ground, 1 basement floor
Total Units 28 units
Land Rights Ownership
Building Area 102.73m²

Renovation Details

  • Completed July 2025
  • Water-related equipment replacements: kitchen, bathroom, toilet
  • Interior renovation: walls, floors, all rooms
  • *The date indicates the oldest renovation section

Features & Amenities

Accessible by more than two train lines Living-Dining-Kitchen over 20 tatami mats Supermarket within 10-minute walk Interior renovation System kitchen Bathroom dryer Corner unit Excellent sunlight exposure Advanced security system Bathroom larger than 1 tsubo (approx. 3.3 sqm) Balconies on two or more sides Auto bath High-speed internet available Warm water washing toilet seat TV monitor intercom Excellent ventilation Ceiling height over 2.5 meters Shoe-in cloakroom Pets negotiable Elementary school within 10-minute walk Floor heating Elevator Delivery box Bicycle parking Dishwasher and dryer Water purifier

Property Information

Land Rights Ownership
Listing Type For sale
Handover Date Negotiable
Address Azabu Nagasaka-cho, Minato-ku, Tokyo
Neighborhood
Japan Tokyo Central Tokyo
Schedule a Private Viewing
Viewings are by appointment only. Our team will arrange a discreet visit at your convenience.
REQUEST INFORMATION
Begin the Conversation
All inquiries are handled with complete discretion. A member of our team will respond within 24 hours.

    By submitting this form, you acknowledge that your information will be handled with complete confidentiality in accordance with our privacy practices.

    Compare Listings

    admin 2