Atowel Kamiyama 590 million yen (4LDK)
15-5 KAMIYAMA-CHO

Atowel Kamiyama 590 million yen (4LDK)

Price ¥590,000,000 ¥2,638,876/m²
Size 223.58m2 4LDK
Bedrooms 4
Floor: 2nd floor Exposure: South Balcony: 1.00m2
Monthly Costs
Management Fee ¥55,800/month
Repair Reserve ¥23,200/month
Transportation Access
  • JR Yamanote Line 'Shibuya' 13 min walk
  • Keio Inokashira Line 'Shinsen' 14 min walk
  • Tokyo Metro Chiyoda Line 'Yoyogi-Koen' 12 min walk

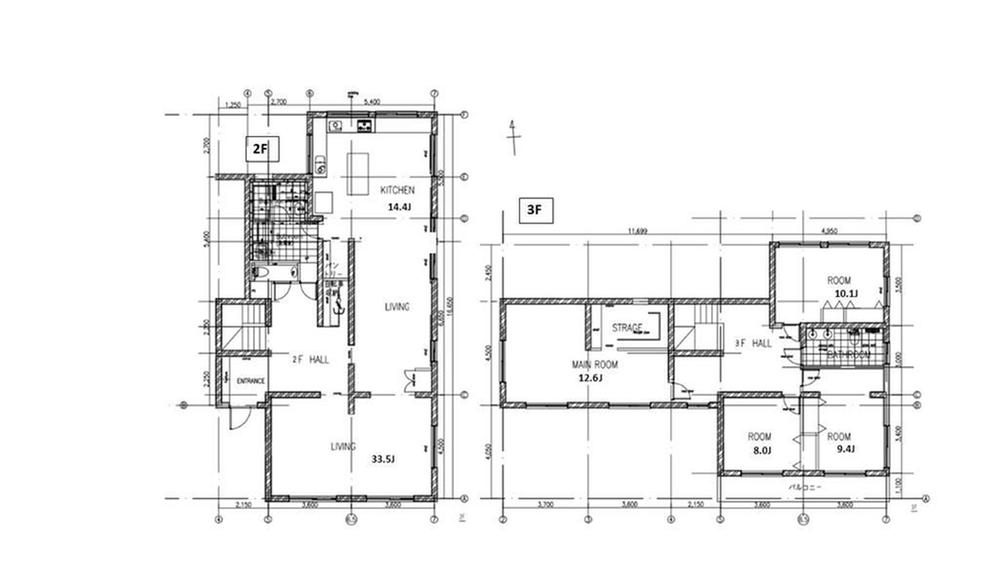
Floor Plans

Floor Plan

About This Residence

Location: 15-5 Kamiyama-cho, Shibuya-ku, Tokyo
4LDK | Floor 2nd floor | South facing
223.58 m² | Balcony: 1.00 m²
Built: April 1988 | Reinforced Concrete 3 floors with 1 basement | 4 units
Management: ¥55,800/mo | Repair Reserve: ¥23,200/mo
Available: Negotiable

Building Details

Year Built April 1988
Structure Reinforced Concrete 3 floors with 1 basement
Total Floors 3 above ground, 1 basement
Total Units 4 units
Land Rights Ownership
Building Area 223.58m²

Land & Zoning

Zoning Category 1 low-rise exclusive residential district

Features & Amenities

Accessible by 2 or more train lines Living-Dining-Kitchen over 20 tatami mats Supermarket within 10 min walk Close to urban area South facing System kitchen Bathroom dryer Corner unit Excellent sunlight exposure Storage in all rooms General hospital within 10 min walk Top floor / no upper floor 2 toilets Bathroom over 1 tsubo size Auto bath Warm water bidet toilet seat Window in bathroom Close to metropolitan area Good ventilation All rooms with hardwood flooring All rooms 6 tatami mats or larger IH cooking heater Pets negotiable Elementary school within 10 min walk Bicycle parking Dishwasher and dryer Motorbike parking

Property Information

Land Rights Ownership
Listing Type For sale
Handover Date Negotiable
Address 15-5 Kamiyama-cho, Shibuya-ku, Tokyo
Neighborhood
Japan Tokyo
Schedule a Private Viewing
Viewings are by appointment only. Our team will arrange a discreet visit at your convenience.
REQUEST INFORMATION
Begin the Conversation
All inquiries are handled with complete discretion. A member of our team will respond within 24 hours.

    By submitting this form, you acknowledge that your information will be handled with complete confidentiality in accordance with our privacy practices.

    Compare Listings

    admin 2